91x色I国产91国语对白在线I欧美精品久久久久久久久久丰满I91超在线I91I91免费在线视频I青草视频免费观看I美女天天操

歡迎訪問河南省長城起重設備集團有限公司!為您提供起重機,廠家熱線:17337313559

17337313559

0371-56629096

當前位置: 網站首頁 >新聞資訊 >> 公司新聞 >>

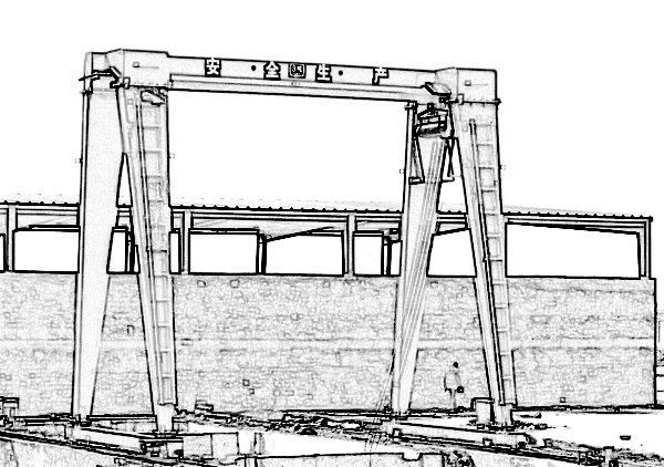
廣西柳州龍門吊廠家 32噸龍門吊支腿結構

發布者:河南長城起重
2023-06-13
426次
      廣西柳州龍門吊廠家【17337313559】是龍門吊出租廠家、架橋機出租廠家、龍門吊銷售廠家、架橋機銷售廠家、提梁機銷售廠家。設備廣泛用于工礦、建材、化工、冶金、電力、交通、鐵路、油田、港口等各個行業。
      廣西柳州龍門吊出租廠家關于起重機的支腿結構形式:
      起重機按支腿的配置情況分:有單支腿,雙支腿和高矮支腿三種。單支腿的起重機稱為半起重機,其無支腿一側的大車行走機構沿鋪設在廠房、倉庫等起重機專用軌道或特設的高架橋軌道上運行。具有高矮支腿的起重機是為適應地形要求而專門設計的。當起重機兩側支腿的腿壓相差甚大,而需要采用不同層數的運行臺車時,也可以采用高矮支腿的方案。
      起重機按支腿性質分:有空間剛性支腿和平面柔性支腿兩種。間剛性支腿具有良好的空間剛性,既能承受支腿平面內的水平載荷(起重機橫向水平載荷),又能承受門架平面內的水平載荷(起重機的縱向水平載荷);柔性支腿在門架平面內(垂直于支腿平面方向)的剛性很差,因此只能承受支腿平面內的水平載荷。大跨度的起重機常采用一個剛性支腿,一個柔性支腿,以防止因溫度變化而產生的卡軌現象。
      廣西柳州龍門吊銷售廠家是集起重設備的研發、設計、制造、安裝服務于一體的企業,以誠信、創新、穩健、為宗旨,公司視產品質量為企業生命,十分注重產品的研發和創新,強化質量保障體系,加強質量檢測,受到了廣大用戶的好評。
      網址:http://m.lyzdcw.com

廠家銷售熱線

17337313559


聯系人:周經理

手機:17337313559

座機:0371-56629096

地址:河南省新鄉市長垣起重工業園區