廠家銷售熱線
17337313559
聯系人:周經理
手機:17337313559
座機:0371-56629096
地址:河南省新鄉市長垣起重工業園區
產品詳情:
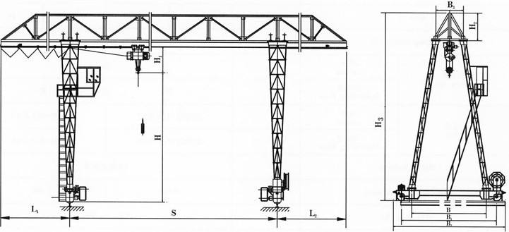
門式起重機(又稱龍門起重機)是橋架通過兩側支腿支撐在地面軌道上的橋架型起重機。在結構上由門架、大車運行機構、起重小車和電氣部分等組成。有的門式起重機只在一側有支腿,另一側支撐在廠房或棧橋上運行,稱作半門式起重機。門式起重機的門架上部橋架(含主梁和端梁)、支腿、下橫梁等部分構成。為了擴大起重機作業范圍,主梁可以向一側或兩側伸出支腿以外,形成懸臂。也可采用帶臂架的起重小車,通過臂架的俯仰和旋轉擴大起重機作業范圍。
主梁形式
1.單主梁
單主梁門式起重機結構簡單,制造安裝方便,自身質量小,主梁多為偏軌箱形架結構。與雙主梁門式起重機相比,整體剛度要弱一些。因此,當起重量Q≤50t、跨度S≤35m時,可采用這種形式。單主梁門式起重機門腿有L型和C型兩種形式。L型的制造安裝方便,受力情況好,自身質量較小,但是,吊運貨物通過支腿處的空間相對小一些。C型的支腳做成傾斜或彎曲形,目的在于有較大的橫向空間,以使貨物順利通過支腳。
2. 雙主梁
雙主梁門式起重機承載能力強,跨度大、整體穩定性好,品種多,但自身質量與相同起重量的單主梁門式起重機相比要大些,造價也較高。根據主梁結構不同,又可分為箱形梁和桁架兩種形式。一般多采用箱形結構。
技術參數:


龍門起重機的主要技術參數包括以下幾個方面:
起重量(Rated capacity):指設備能夠安全起重的最大重量。通常以噸(t)或千克(kg)作為單位。
起升高度(Lifting height):指起重機或龍門吊能夠垂直起升的最大高度,通常以米(m)作為單位。
工作速度(Working speed):包括起升速度、小車(龍門吊)或回轉速度(起重機),通常以米每分鐘(m/min)或米每秒(m/s)作為單位。
工作級別(Working class):用來描述起重機或龍門吊的工作強度和使用頻率,一般分為A1-A8級,級別越高表示設備的工作強度越大。
控制方式(Control mode):包括手動控制和電氣控制兩種方式。電氣控制方式可以進一步細分為集中控制和無線遙控等。
動力源(Power source):通常是電動或液壓動力,也有一些使用燃油或氣體動力的起重機。
結構形式(Structure form):指起重機或龍門吊的結構類型,例如單梁起重機、雙梁起重機、門式起重機等。
安全保護裝置(Safety devices):包括限位器、重載保護裝置、防碰撞裝置等,用于確保設備的安全運行和防止意外事故發生。
需要根據實際需求選擇合適的龍門吊或起重機,并參考其技術參數來滿足工作場所的要求。具體的技術參數可能因不同的制造商和型號而有所差異,使用前應仔細查閱相關設備的說明書和技術規格。