廠家銷售熱線
17337313559
聯系人:周經理
手機:17337313559
座機:0371-56629096
地址:河南省新鄉市長垣起重工業園區
產品詳情:
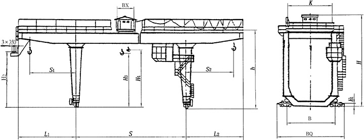
一、雙梁吊鉤門式起重機適用露天倉庫、料場、鐵路貨站、港口碼頭等裝卸搬運。還可以配以多種鉤具進行多種作業。
二、起重機有橋架、大車運行機構、小車、電器設備等組成。橋架采用箱型雙梁焊接結構,大車運行機構采用分別驅動,機構均在操縱室操縱。
三、起重機導電形式分為電纜和滑線兩種,用戶可任選一種,圖表中數據以滑線為準。
四、本系統起重機正常使用的環境應在一25℃~+40℃范圍內,24小時內的平均溫度不得超過十35℃。其它安裝使用地點的海拔高度不得超過2000米,超過1000米的應對電動機容量進行校核。
技術參數:

